Meinhardt Design Inc

Design & Detailing of: Cabinetry + Furniture + Architectural Woodwork

Small Wine Room

The client was undecided about wood species and finish. A rendering was made of the casework using maple with a clear finish. Ultimately they chose walnut, lumber and veneers, and a warm dark finish.

3d rendering showing 3 views of room.

The project was to convert a hall closet to a wine storage room and we needed to work within the existing floor plan.

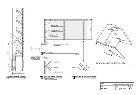
Shop drawings, sheet 1

The available space on the left wall was limited. We used single bottle shelving so the bottles could run parallel with the wall. See the section detail below left.

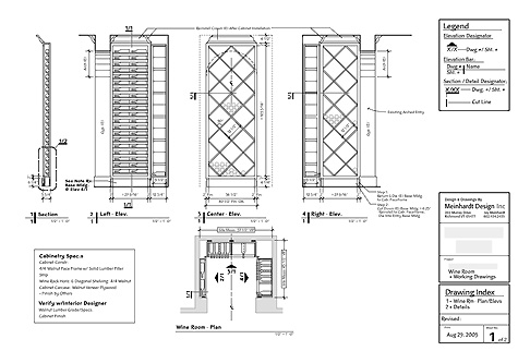
Shop drawings, sheet 2