Meinhardt Design Inc

Design & Detailing of: Cabinetry + Furniture + Architectural Woodwork

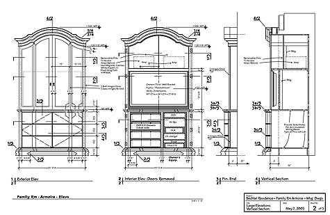
Dutch Armoire Media Cabinet

Twenty-five inches of the cabinet are recessed into a niche in the wall. The upper cabinet features a pair of bifold doors to hide a Plasma TV. The base cabinet is serpentine in plan. It houses the AV equipment and media storage drawers. The base cabinet doors are fashioned to look like six drawers — three drawers side by side.

sheet 2

Showing sheets: 2, 3, & 4 of 5

sheet 3 sheet 4