Meinhardt Design Inc

Design & Detailing of: Cabinetry + Furniture + Architectural Woodwork

Kitchen   English

This is an English style paint grade kitchen. The cabinet construction is faceframe, flush inset - meaning the face of the doors and drawer fronts are flush with the face of the cabinet faceframe. The upper doors either side of the range hood are glazed. The backsplash and range hood are clad with vertical T & G. The counter top is granite.

Hidden-Line Rendering

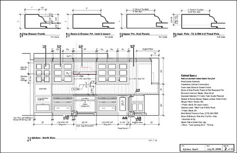
Showing a "hidden-line" rendering and sheets: 2, 3 & 5 of 10

sheet 2

The sheet below shows the island centered on the cooktop and range shown above. Below right are fullscale profiles through doors, drawers and paneling at key locations.

sheet 3

The refrigerator, on the adjoining east wall, is enclosed in a paneled cabinet.The refrigerator and dishwasher have applied panels, matching the rest of the kitchen.

sheet 5